loader
Schedule showing

Save

For Sale

Detached #X12914738

$914,800

Estimated value: $888,194

3%

5703 Osprey Ave

Niagara Falls - Forestview

3 bds
4 ba
2 prk
2000-2500 sqft
Commutes
Add a commute
img

Virtual tour

img

Street view

Map

Save

Property history Buy/sell history for 5703 Osprey Ave Niagara Falls

Real estate boards require a verified account to access sold property details.

Have an account? Log in

$914,800

For Sale

Date: 24 Mar, 2026 30 days
X12914738
Property details
Highlights
Home value
Rental analysis
Payments
Market trends

Home facts

Details

Rooms

Tax
$8300/yr
Property type
Detached
Style
2-Storey
Building age
6-15
Sqft
2000-2500
Lot size
42.98 x 111.45
Price/sqft
$365.92/sqft
Basement
Fin W/O
Parking
Attached 2 garage, 6 parking
MLS® #
X12914738
Major intersection
Neighbourhood
Forestview
Listed on
24 Mar, 2026

About this home

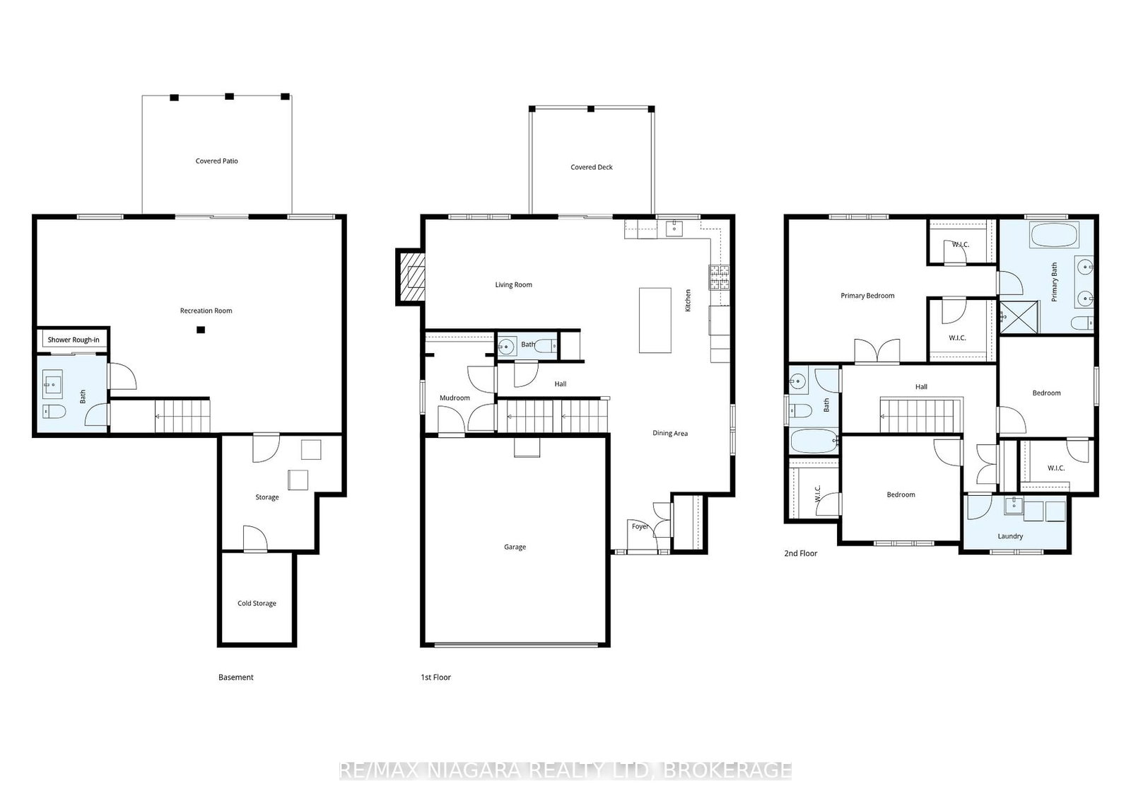
FULLY FINISHED WALK-OUT BASEMENT! Located in Niagara Falls' desirable south end, 5703 Osprey Ave offers approximately 2,900 sq. ft. of finished living space in a .in a stylish and functional 2-storey family home. With 3 bedrooms, 4 bathrooms, a double car garage, and parking for 6 vehicles, this home is designed for real life. The main floor offers a practical layout with bright, polished living spaces, a convenient mud room, and a kitchen with a walk-out to a covered deck, creating an easy connection between indoor living and outdoor enjoyment. Upstairs, all three bedrooms feature walk-in closets, while the primary suite offers his-and-hers walk-in closets and a spacious 5-piece ensuite with a tiled glass shower and soaker tub. Second-floor laundry adds even more everyday convenience.The finished walk-out basement is the feature that truly sets this home apart. Brightened by windows and offering direct access to the concrete patio, it provides the kind of additional living space that can adapt to your needs, whether for family time, entertaining, or a play area. There is also plenty of storage, a cold cellar, and a bathroom with a shower rough-in tucked into the closet for future potential. Outside, the covered deck and lower patio extend the living space and create a great setup for relaxing or entertaining. Close to Costco, Walmart, grocery stores, restaurants, and other everyday amenities, this move-in ready home offers comfort, function, and a location that makes daily life easier. Please note, location of above ground pool will be sodded in late spring. Read More

More homes for sale under $900k in Niagara Falls
Estimated value: $888,194

Sold comparables

Bi-weekly
Weekly
Monthly

Estimated payment

Home price

Down Payment

Loan type

Interest rate

Property tax (monthly)

Maintenance fee

image

Contact reapp agent

Name

Email

Phone

Preferred method of communication

Message

img

Virtual tour

img

Street view

Request a tour

Pick a date

Today

23

Apr

Tomorrow

24

Apr

Saturday

25

Apr

Sunday

26

Apr

Monday

27

Apr

Tuesday

28

Apr

Wednesday

29

Apr

Thursday

30

Apr

Friday

01

May

Saturday

02

May

Sunday

03

May

Monday

04

May

Tuesday

05

May

Wednesday

06

May

Thursday

07

May

Friday

08

May

Saturday

09

May

Sunday

10

May

Monday

11

May

Tuesday

12

May

Wednesday

13

May

Thursday

14

May

Friday

15

May

Saturday

16

May

Sunday

17

May

Monday

18

May

Tuesday

19

May

Wednesday

20

May

Thursday

21

May

Friday

22

May

Saturday

23

May

Sunday

24

May

Monday

25

May

Tuesday

26

May

Wednesday

27

May

Thursday

28

May

Friday

29

May

Saturday

30

May

Sunday

31

May

Monday

01

Jun

Tuesday

02

Jun

Wednesday

03

Jun

Thursday

04

Jun

Friday

05

Jun

Saturday

06

Jun

Sunday

07

Jun

Monday

08

Jun

Tuesday

09

Jun

Wednesday

10

Jun

Thursday

11

Jun

Friday

12

Jun

Saturday

13

Jun

Sunday

14

Jun

Monday

15

Jun

Tuesday

16

Jun

Wednesday

17

Jun

Thursday

18

Jun

Friday

19

Jun

Saturday

20

Jun

Sunday

21

Jun

Monday

22

Jun

Tuesday

23

Jun

Wednesday

24

Jun

Thursday

25

Jun

Friday

26

Jun

Saturday

27

Jun

Sunday

28

Jun

Monday

29

Jun

Tuesday

30

Jun

Wednesday

01

Jul

Thursday

02

Jul

Friday

03

Jul

Saturday

04

Jul

Sunday

05

Jul

Monday

06

Jul

Tuesday

07

Jul

Wednesday

08

Jul

Thursday

09

Jul

Friday

10

Jul

Saturday

11

Jul

Sunday

12

Jul

Monday

13

Jul

Tuesday

14

Jul

Wednesday

15

Jul

Thursday

16

Jul

Friday

17

Jul

Saturday

18

Jul

Sunday

19

Jul

Monday

20

Jul

Tuesday

21

Jul

Wednesday

22

Jul

Thursday

23

Jul

Friday

24

Jul

Saturday

25

Jul

Sunday

26

Jul

Monday

27

Jul

Tuesday

28

Jul

Wednesday

29

Jul

Thursday

30

Jul

Friday

31

Jul

Saturday

01

Aug

Sunday

02

Aug

Monday

03

Aug

Tuesday

04

Aug

Wednesday

05

Aug

Thursday

06

Aug

Friday

07

Aug

Saturday

08

Aug

Sunday

09

Aug

Monday

10

Aug

Tuesday

11

Aug

Wednesday

12

Aug

Thursday

13

Aug

Friday

14

Aug

Saturday

15

Aug

Sunday

16

Aug

Monday

17

Aug

Tuesday

18

Aug

Wednesday

19

Aug

Thursday

20

Aug

Friday

21

Aug

Saturday

22

Aug

Sunday

23

Aug

Monday

24

Aug

Tuesday

25

Aug

Wednesday

26

Aug

Thursday

27

Aug

Friday

28

Aug

Saturday

29

Aug

Sunday

30

Aug

Monday

31

Aug

Tuesday

01

Sep

Wednesday

02

Sep

Thursday

03

Sep

Friday

04

Sep

Saturday

05

Sep

Sunday

06

Sep

Monday

07

Sep

Tuesday

08

Sep

Wednesday

09

Sep

Thursday

10

Sep

Friday

11

Sep

Saturday

12

Sep

Sunday

13

Sep

Monday

14

Sep

Tuesday

15

Sep

Wednesday

16

Sep

Thursday

17

Sep

Friday

18

Sep

Saturday

19

Sep

Sunday

20

Sep

Monday

21

Sep

Tuesday

22

Sep

Wednesday

23

Sep

Thursday

24

Sep

Friday

25

Sep

Saturday

26

Sep

Sunday

27

Sep

Monday

28

Sep

Tuesday

29

Sep

Wednesday

30

Sep

Thursday

01

Oct

Friday

02

Oct

Saturday

03

Oct

Sunday

04

Oct

Monday

05

Oct

Tuesday

06

Oct

Wednesday

07

Oct

Thursday

08

Oct

Friday

09

Oct

Saturday

10

Oct

Sunday

11

Oct

Monday

12

Oct

Tuesday

13

Oct

Wednesday

14

Oct

Thursday

15

Oct

Friday

16

Oct

Saturday

17

Oct

Sunday

18

Oct

Monday

19

Oct

Tuesday

20

Oct

Wednesday

21

Oct

Thursday

22

Oct

Friday

23

Oct

Saturday

24

Oct

Sunday

25

Oct

Monday

26

Oct

Tuesday

27

Oct

Wednesday

28

Oct

Thursday

29

Oct

Friday

30

Oct

Saturday

31

Oct

Sunday

01

Nov

Monday

02

Nov

Tuesday

03

Nov

Wednesday

04

Nov

Thursday

05

Nov

Friday

06

Nov

Saturday

07

Nov

Sunday

08

Nov

Monday

09

Nov

Tuesday

10

Nov

Wednesday

11

Nov

Thursday

12

Nov

Friday

13

Nov

Saturday

14

Nov

Sunday

15

Nov

Monday

16

Nov

Tuesday

17

Nov

Wednesday

18

Nov

Thursday

19

Nov

Friday

20

Nov

Saturday

21

Nov

Sunday

22

Nov

Monday

23

Nov

Tuesday

24

Nov

Wednesday

25

Nov

Thursday

26

Nov

Friday

27

Nov

Saturday

28

Nov

Sunday

29

Nov

Monday

30

Nov

Tuesday

01

Dec

Wednesday

02

Dec

Thursday

03

Dec

Friday

04

Dec

Saturday

05

Dec

Sunday

06

Dec

Monday

07

Dec

Tuesday

08

Dec

Wednesday

09

Dec

Thursday

10

Dec

Friday

11

Dec

Saturday

12

Dec

Sunday

13

Dec

Monday

14

Dec

Tuesday

15

Dec

Wednesday

16

Dec

Thursday

17

Dec

Friday

18

Dec

Saturday

19

Dec

Sunday

20

Dec

Monday

21

Dec

Tuesday

22

Dec

Wednesday

23

Dec

Thursday

24

Dec

Friday

25

Dec

Saturday

26

Dec

Sunday

27

Dec

Monday

28

Dec

Tuesday

29

Dec

Wednesday

30

Dec

Thursday

31

Dec

Friday

01

Jan

Saturday

02

Jan

Sunday

03

Jan

Monday

04

Jan

Tuesday

05

Jan

Wednesday

06

Jan

Thursday

07

Jan

Friday

08

Jan

Saturday

09

Jan

Sunday

10

Jan

Monday

11

Jan

Tuesday

12

Jan

Wednesday

13

Jan

Thursday

14

Jan

Friday

15

Jan

Saturday

16

Jan

Sunday

17

Jan

Monday

18

Jan

Tuesday

19

Jan

Wednesday

20

Jan

Thursday

21

Jan

Friday

22

Jan

Saturday

23

Jan

Sunday

24

Jan

Monday

25

Jan

Tuesday

26

Jan

Wednesday

27

Jan

Thursday

28

Jan

Friday

29

Jan

Saturday

30

Jan

Sunday

31

Jan

Monday

01

Feb

Tuesday

02

Feb

Wednesday

03

Feb

Thursday

04

Feb

Friday

05

Feb

Saturday

06

Feb

Sunday

07

Feb

Monday

08

Feb

Tuesday

09

Feb

Wednesday

10

Feb

Thursday

11

Feb

Friday

12

Feb

Saturday

13

Feb

Sunday

14

Feb

Monday

15

Feb

Tuesday

16

Feb

Wednesday

17

Feb

Thursday

18

Feb

Friday

19

Feb

Saturday

20

Feb

Sunday

21

Feb

Monday

22

Feb

Tuesday

23

Feb

Wednesday

24

Feb

Thursday

25

Feb

Friday

26

Feb

Saturday

27

Feb

Sunday

28

Feb

Monday

01

Mar

Tuesday

02

Mar

Wednesday

03

Mar

Thursday

04

Mar

Friday

05

Mar

Saturday

06

Mar

Sunday

07

Mar

Monday

08

Mar

Tuesday

09

Mar

Wednesday

10

Mar

Thursday

11

Mar

Friday

12

Mar

Saturday

13

Mar

Sunday

14

Mar

Monday

15

Mar

Tuesday

16

Mar

Wednesday

17

Mar

Thursday

18

Mar

Friday

19

Mar

Saturday

20

Mar

Sunday

21

Mar

Monday

22

Mar

Tuesday

23

Mar

Wednesday

24

Mar

Thursday

25

Mar

Friday

26

Mar

Saturday

27

Mar

Sunday

28

Mar

Monday

29

Mar

Tuesday

30

Mar

Wednesday

31

Mar

Thursday

01

Apr

Friday

02

Apr

Saturday

03

Apr

Sunday

04

Apr

Monday

05

Apr

Tuesday

06

Apr

Wednesday

07

Apr

Thursday

08

Apr

Friday

09

Apr

Saturday

10

Apr

Sunday

11

Apr

Monday

12

Apr

Tuesday

13

Apr

Wednesday

14

Apr

Thursday

15

Apr

Friday

16

Apr

Saturday

17

Apr

Sunday

18

Apr

Monday

19

Apr

Tuesday

20

Apr

Wednesday

21

Apr

Thursday

22

Apr

Pick a Time

Morning

9 AM - 12 PM

Afternoon

12 PM - 5 PM

Evening

5 PM - 9 PM

Name

Email

Phone

Preferred method of communication

By proceeding you agree to receive texts, calls and emails at the number and email provided

Property is listed by RE/MAX NIAGARA REALTY LTD, BROKERAGE

We are hiring | Join ReApp team

Property is listed by RE/MAX NIAGARA REALTY LTD, BROKERAGE

We are hiring | Join ReApp team

Similar listings for sale in Forestview, Niagara Falls

Homes for sale similar to 5703 Osprey Ave Niagara Falls, Forestview